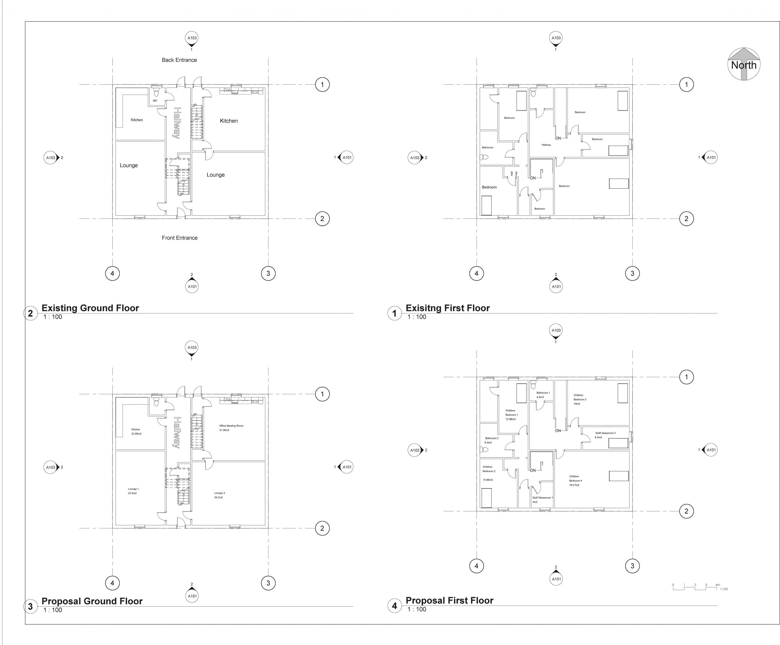
Change of use
Planning Permission Granted
This project, in working with Brighter Future Children's Services, will support up to four children providing them with a safe, nurturing and purpose designed home.
Scope:C3a to C2
Approved: July 2025 I Kirklees Council
Change of use
C3a to C2
FLOOR PLANS
Layout proposal for children's care home
Modern Design.
Through a unique combination of engineering, construction and design
Luxurious Facilities.
Through a unique combination of engineering, construction and design
Modern Design.
Through a unique combination of engineering, construction and design
Luxurious Facilities.
Through a unique combination of engineering, construction and design
Hear from our clients
Thank you for the amazing work you did with our recent planning. A professional and quick service. Highly recommend.